À Montpellier, apprendre SketchUp seule peut faire perdre du temps, de l’argent et de bons réflexes. Découvrez une formation centrée métier, basée sur un projet concret et  animée par une architecte d’intérieur.

APPRENDRE SKETCHUP SEULE OU SE FORMER AVEC UNE DÉCORATRICE ?

apprendre SetchUp seul débutant décoration intérieure Montpellier

Apprendre seul semble simple …au départ.

À Montpellier, de plus en plus de personnes envisagent une reconversion en décoration intérieure, ou cherchent à développer une compétence concrète pour mieux présenter leurs projets.

Et une question revient souvent :

Faut-Il Apprendre Sketchup Seule… Ou Se Former Avec Une Professionnelle ?

Sur internet, tout semble accessible.

Des tutoriels, des vidéos, des contenus gratuits.

Au départ, apprendre seule paraît économique.

Mais dans la réalité, ce n’est pas toujours le bon calcul.

APPRENDRE SEULE : LA FAUSSE BONNE IDÉE

Au début, ça fonctionne.

On arrive à faire une pièce.
À placer quelques meubles.
À tester quelques idées.

Puis très vite, les difficultés apparaissent.

Les objets se collent entre eux.
On déplace un élément, tout bouge.
On modifie une cuisine, un meuble, une implantation… et tout est à refaire.

Le modèle devient instable.
On passe plus de temps à corriger qu’à créer.

Et c’est là que beaucoup perdent un temps énorme.

  • Vous perdez du temps
  •  Vous perdez en crédibilité
  •  Vous perdez de l’argent

A lire aussi : les 7 erreurs à éviter quand on débute sur SketchUp

erreur SketchUp modèle mal structuré débutant                                                                                                                             Sans méthode le modèle devient vite incontrôlable

UN PROJET DÉCO N’EST JAMAIS FIGÉ

Dans la réalité du métier, un projet évolue en permanence.

  • un client change d’avis
  • un budget évolue
  • un meuble ne convient plus
  • une implantation doit être revue
  • un détail d’agencement doit être ajusté

Si votre modèle n’est pas structuré correctement dès le départ, vous recommencez tout.

Et quand on débute, c’est exactement ce qui décourage

SKETCHUP : BIEN PLUS QUE DE LA 3D

On pense souvent que SketchUp sert uniquement à faire une vue 3D.

En réalité, c’est bien plus que cela.

SketchUp permet de travailler à la fois en 2D et en 3D et d’accompagner toutes les étapes d’un projet d’aménagement.

Vous pouvez réaliser facilement ensuite  :

  • Des plans 2D
  • Des vues 3D pour aider le client à se projeter

Le tout rapidement, simplement, parfois juste en orientant la caméra et en adaptant les styles.

 Avec SketchUp, vous ne faites pas seulement une 3D. Vous construisez un projet complet.

Découvrir la formation SketchUp centrée métier.

Exemple concret : de l’existant à la projection

C’est là que SketchUp devient un véritable outil métier.

Vous partez d’un espace existant, vous l’analysez, vous l’organisez, vous le modélisez, puis vous le rendez lisible et convaincant.

état existant appartement avant aménagement intérieur Montpellier

Point du départ du projet  à Montpellier : un espace à repenser

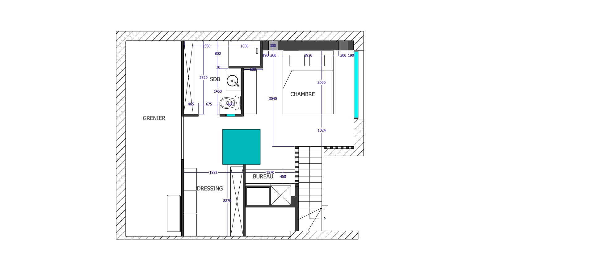
Plan 2D aménagement intérieur SketchUp Montpellier

Organisation de l’espace en plan 2D

 

 

aménagement intérieur final projet de décoration intérieur Montpellier

Réalisation du projet 3D Sketchup de décoration d’intérieur Montpellier

Ce type de projet montre concrètement comment la 3D permet de passer d’une idée à une proposition claire, cohérente et présentable.

En quelques jours, on peut apprendre à concevoir, modifier et présenter un projet sans multiplier les logiciels.

 

CE QUI FAIT LA DIFFÉRENCE : UNE FORMATION CENTRÉE MÉTIER 

Apprendre seule permet de tester.

Mais cela ne suffit pas toujours pour devenir opérationnelle.

Ce qui manque souvent, ce n’est pas l’accès aux outils.
C’est la méthode.

Dans mes formations, vous ne faites pas des exercices abstraits.

Vous travaillez sur un vrai projet d’aménagement, avec un cahier des charges, comme dans la réalité du métier.

Projet d'aménagement plateau Montpellier avec SketchUp

Je vous enseigne :

  • Les outils vraiment indispensables
  • La logique métier
  • Une méthode claire
  • Une façon de construire un modèle propre, structuré et modifiable

L’objectif n’est pas de “connaître SketchUp”.

L’objectif est de savoir s’en servir dans un vrai projet.

UN PROJET À MONTRER : C’EST ESSENTIEL QUAND ON DÉBUTE

C’est un point très important, surtout en reconversion.

Dans mes formations, vous ne repartez pas seulement avec des notions.

Vous repartez avec un premier projet complet, que vous pouvez montrer :

  • à un client
  • à un employeur
  • pour démarrer votre activité
  • pour prouver concrètement vos compétences

Quand on débute et qu’on n’a encore rien à présenter, cela change tout.

 Avoir un premier projet exploitable aide à convaincre.

ALLER PLUS LOIN : PRÉSENTER POUR CONVAINCRE

Modéliser un projet est une étape.

Le présenter clairement en est une autre.

C’est pour cela qu’une formation plus complète sur 7 jours permet aussi d’apprendre à structurer une présentation professionnelle avec PowerPoint.

Cette formule permet d’apprendre à :

  • structurer un dossier client
  • mettre en valeur ses visuels
  • présenter un projet clairement
  • rendre son travail plus professionnel et plus convaincant

Parce qu’au final, modéliser ne suffit pas.

Il faut aussi convaincre.

Présentation projet décoration intérieure client PowerPoint Montpellier

Un projet bien présenté permet de convaincre

 

Présentation projet décoration intérieure client Powerpoint

Vue de dessus

Présentation projet décoration intérieure client Powerpoint

Elévation

 

FORMATION SKETCHUP MONTPELLIER – LOVELLDECO

Si vous voulez apprendre SketchUp avec une vraie logique de projet, une approche concrète et un cadre centré métier, mes formations ont été pensées pour cela.

Ce que je propose

  • Formation SketchUp 5 jours : apprentissage complet sur un projet réel
  • Formation 7 jours : SketchUp + présentation de projet avec PowerPoint
  • Présentiel : Montpellier, Narbonne, Béziers, Carcassonne, Perpignan
  • Visio : partout en France ( individuel)
  • Petit groupe : 2 stagiaires maximum en présentie

Ce qui fait la différence

  • une approche centrée métier
  • un projet d’aménagement concret
  • un cahier des charges réaliste
  • uniquement les outils utiles dans la pratique
  • un premier projet à montrer en fin de formationDécouvrir la formation SketchUp Lovelldeco

Découvrez La Formation :

https://lovelldeco.com/formation-professionnelle-sketchup-pour-la-decoration/

Découvrir devenir décorateur d’intérieur sans savoir dessiner

CONCLUSION

 

Apprendre SketchUp seule peut sembler économique au départ.

Mais mal apprendre coûte souvent plus cher :

  • en temps
  • en énergie
  • en crédibilité
  • et parfois en opportunités

Avec une formation centrée métier, vous avancez plus vite, avec une vraie méthode, sur un projet concret.

Et surtout, vous repartez avec quelque chose à montrer.

Evaluez post